144 m² geballter Luxus! Mehr muss man zu diesem exklusiven Modul-Haus gar nicht mehr sagen.
Sie werden sich wohlfühlen!
Ein wahrer Palast!
144 m² geballter Luxus! Mehr muss man zu diesem exklusiven Modul-Haus gar nicht mehr sagen.
Sie werden sich wohlfühlen!
Ein wahrer Palast!
Details
✔️ Isolierung: Basaltwolle (150 mm – Wände, 200 mm – Decke und Boden)
✔️ Fassade: Thermoholz mit Leinöl beschichtet; Verbunddekorplatten Ecobond; Premium-Platten HPL
✔️ Bodenbelag: Fliesen, Laminat, Fußbodenheizung
✔️ Badezimmerboden: Premium-Fliesen
✔️ Fenster: Doppelkammer Metall-Kunststoff, laminiert
✔️ Türen: Eingang und Innenraum „Standard +“
✔️ Innenausbau von Wänden und Decken: Stuckdecke, weiß gestrichen; abwaschbare Premiumtapete
✔️ Heizung: elektrisch (Steckdosen unter den Fenstern)
Bad
✔️Ausstattung: Lampen, Schalter, Steckdosen, Boiler, Duschkabine Hersteller Radaway (1. OG), Bad (2. OG), Geberit wandhängende WC-Becken, Grohe Armaturen
✔️ der Badezimmerboden besteht aus hochwertigen Premium-Fliesen
Extras verfügbar
✔️ Außenhülle aus Thermoholz
✔️ Terrasse
✔️ Wintergarten
✔️ zusätzliche Türen und Fenster
✔️ elektrische Vorbereitung von Klimaanlagen
✔️ Vorbereitung der Solaranlage
✔️ Ladestation für Elektroautos
Schallschutz: unsere Tiny & Modulhäuser sind natürlich schallgeschützt! Durch den guten Schallschutz und die Auswahl hochwertiger Rohstoffe erreichen wir einen Lärmpegel 60 – 65 dB.
Dachaufbau: in der Grundausstattung bietet dieses Tiny & Modulhaus ein Flachdach mit 7 prozentigen Neigungswinkel.
Heizungsart: auch hier bieten wir Ihnen verschiedene Heizsysteme an. Unser beliebtestes Heizungsmodell ist die Fußbodenheizung.
Elektronik: eingebautes Stromnetz, ausgestattet mit einer Relaisbox, Schaltern und Steckdosen.
Gewicht: das Gewicht variiert je nach Ausstattung und Größe.
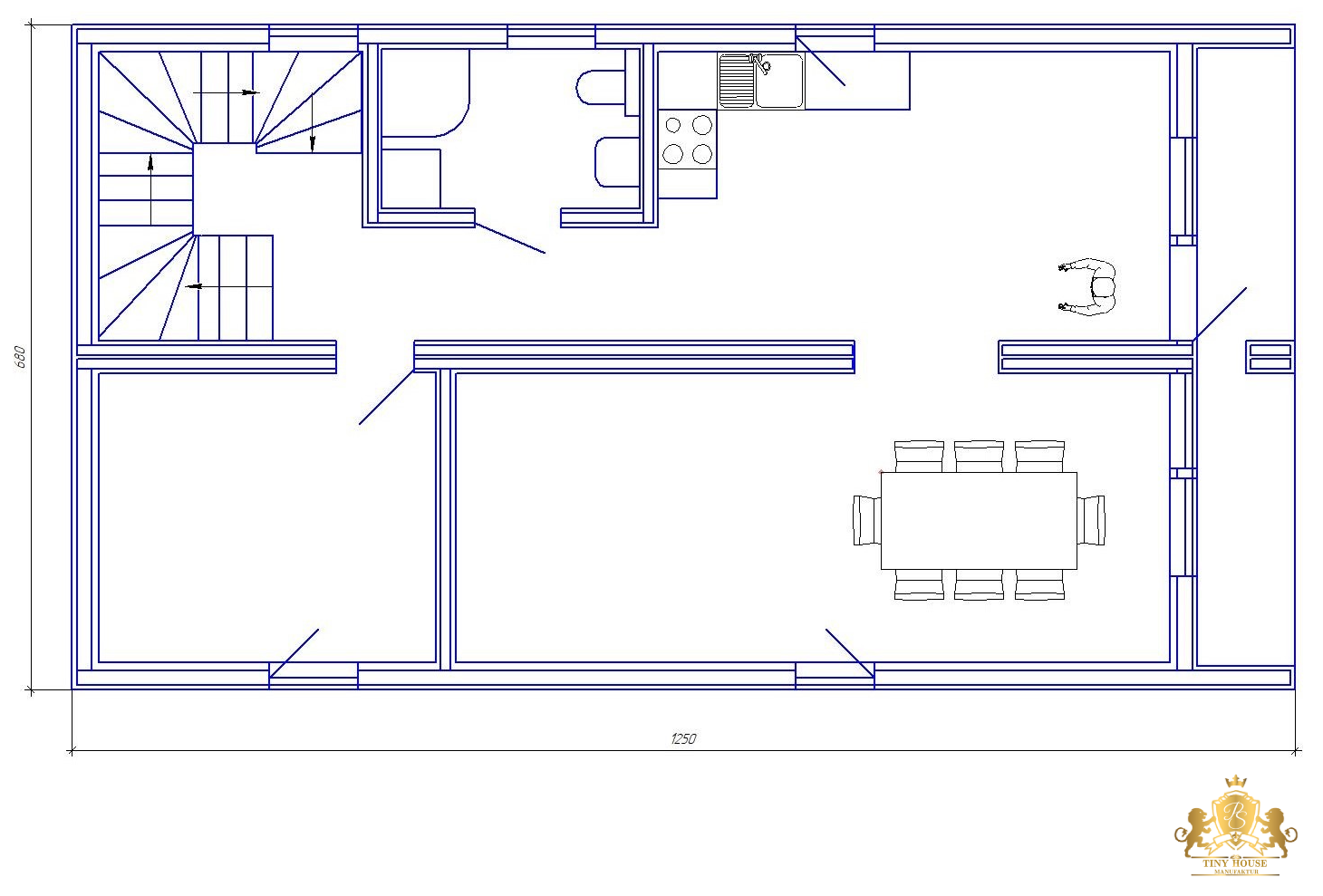
| Bodenfläche (Die Wohnfläche ist frei wählbar): | 144m² / 170m²/ 190m² |
| Außenmaße (Länge, Breite, Höhe): | je nach Größe |
| Anzahl Module: | 4 |
| Anzahl der Räume: | 3 |
| Produktionsdauer: | 12-20 Wochen |
Es gilt einiges zu beachten für die Planung und zudem noch die Möglichkeit, staatliche Förderungen zu erhalten. Also nutzen Sie Ihre Möglichkeiten mit unserer Unterstützung. Wir informieren Sie auf unserer Seite weiter über die Möglichkeiten rund um die KFW und beraten Sie gerne individuell nach Ihren Fragen.
Lassen Sie uns unverbindlich ins Gespräch kommen, denn wir sind überzeugt, dass auch für Sie ein Tiny House interessant sein könnte. Wir freuen uns auf Ihre Anfrage.
Sollten Sie Fragen haben oder eine unverbindliche Beratung wünschen stehen wir Ihnen natürlich zur Verfügung. Rufen Sie uns einfach an oder schreiben Sie uns eine E-Mail. Wir freuen uns auf Sie!
© Copyright 2022. Tiny House Manufaktur
Necessary cookies are absolutely essential for the website to function properly. This category only includes cookies that ensures basic functionalities and security features of the website. These cookies do not store any personal information.
Any cookies that may not be particularly necessary for the website to function and is used specifically to collect user personal data via analytics, ads, other embedded contents are termed as non-necessary cookies. It is mandatory to procure user consent prior to running these cookies on your website.
Kontakt