Tiny House - Modell Rustikal

Tiny-House-Model-3

Tiny House - Modell Rustikal

Eine rustikale Lösung bieten wir mit unserem größten Tiny House Modell „Rustikal“. Die Größe beträgt 47 m² und Sie haben die Wahl zwischen zwei Schlafzimmern oder einem großflächigen Wohn- und Essbereich.

Durch die moderne und funktionale Küche sowie das großzügige WC, steht dieses Modulhaus auch den Großen in nichts nach. Die Wohnfläche ist funktional.

Durch die moderne und funktionale Küche sowie das großzügige WC, steht dieses Modulhaus auch den Großen in nichts nach. 3 Verfügbare Größen von 35-47m² !

Ausstattung

Details

✔️ Unsere Tiny & Modulhäuser werden schlüsselfertig gebaut.
✔️ energiesparende, gute Wärme- und Schalldämmung (7-Kammer) Türen und Fenster
✔️ Laminatboden in Premiumqualität
✔️ LED-Beleuchtung im Außen- und Innenbereich
✔️ eingebautes Stromnetz, ausgestattet mit einer Relaisbox, Schaltern und Steckdosen
✔️ Versorgungsleitungen, also die Anschlüsse an Telekommunikation, Gas, Strom, Fernwärme, Wasser und Abwasser sind vorinstalliert.
✔️ die Außenfassade besteht aus Kiefernholz
✔️ dreifach verglaste Fenster
✔️ Eingangstür und Zimmertüren in Premiumqualität
✔️ Laminatboden

Bad
✔️ zentralisiertes Wasser- und Abwassersystem
✔️ Duschkabine
✔️ WC inklusive WC-Sitz
✔️ Waschbecken mit Schrank
✔️ Edelstahlarmaturen
✔️ der Boden besteht aus weißen Fliesen

Extras verfügbar
✔️ Fußbodenheizung
✔️ Außenhülle aus Thermoholz
✔️ Terrasse
✔️ Wintergarten
✔️ zusätzliche Türen und Fenster
✔️ elektrische Vorbereitung von Klimaanlagen
✔️ Vorbereitung der Solaranlage
✔️ Ladestation für Elektroautos

Technische Angaben

Schallschutz: unsere Tiny & Modulhäuser sind natürlich schallgeschützt! Durch den guten Schallschutz und die Auswahl hochwertiger Rohstoffe erreichen wir einen Lärmpegel 60 – 65 dB.
Dachaufbau: in der Grundausstattung bietet dieses Tiny & Modulhaus ein Flachdach mit 7 prozentigen Neigungswinkel.
Heizungsart: auch hier bieten wir Ihnen verschiedene Heizsysteme an. Unser beliebtestes Heizungsmodell ist die Fußbodenheizung.
Elektronik: eingebautes Stromnetz, ausgestattet mit einer Relaisbox, Schaltern und Steckdosen.
Gewicht: das Gewicht variiert je nach Ausstattung und Größe.

Bodenfläche (Die Wohnfläche ist frei wählbar):35m² / 42m² / 47m²
Außenmaße (Länge, Breite, Höhe):je nach Größe
Anzahl Module:1
Anzahl der Räume:3
Produktionsdauer:12-20 Wochen

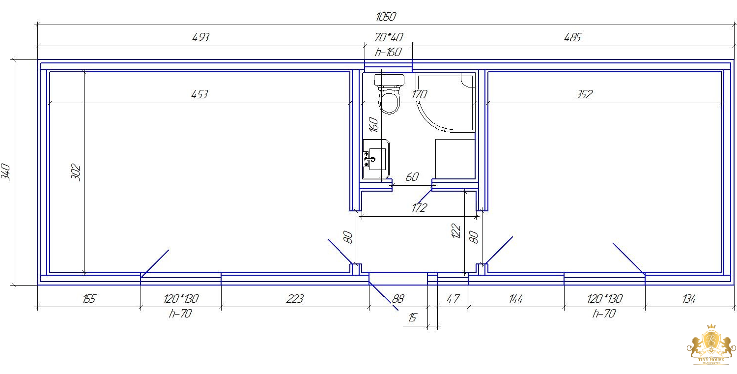
Grundrisse

Wohnfläche: 35m²

Wohnfläche: 42m²

Wohnfläche: 47m²

Preis:

35 m² :  52.900 €

42 m² : 60.900 €

47 m² : 69.900 €

(Die Lieferzeit beträgt nur ca. 12-20 Wochen)

Unverbindliche Beratung

Es gilt einiges zu beachten für die Planung und zudem noch die Möglichkeit, staatliche Förderungen zu erhalten. Also nutzen Sie Ihre Möglichkeiten mit unserer Unterstützung. Wir informieren Sie auf unserer Seite weiter über die Möglichkeiten rund um die KFW und beraten Sie gerne individuell nach Ihren Fragen.

Lassen Sie uns unverbindlich ins Gespräch kommen, denn wir sind überzeugt, dass auch für Sie ein Tiny House interessant sein könnte. Wir freuen uns auf Ihre Anfrage.

Beratung & Service

Sollten Sie Fragen haben oder eine unverbindliche Beratung wünschen stehen wir Ihnen natürlich zur Verfügung. Rufen Sie uns einfach an oder schreiben Sie uns eine E-Mail. Wir freuen uns auf Sie!